

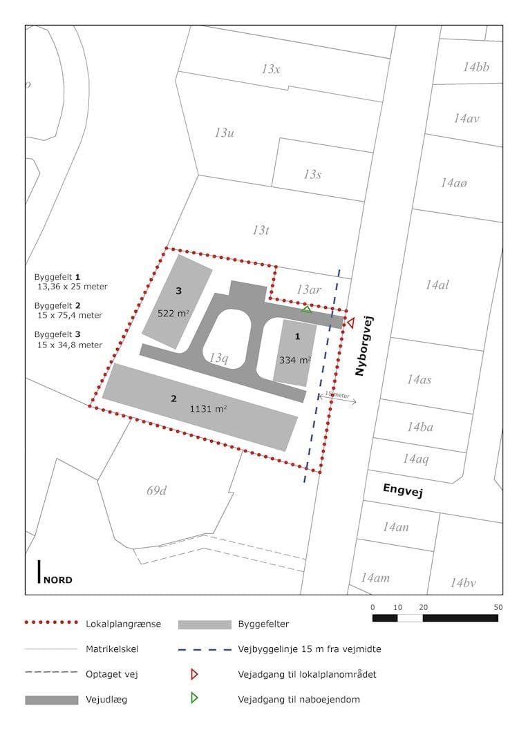
Klik her for at se kortbilaget som pdf-fil: LINK
For at beholde kortbilaget i det rette målestok, skal pdf'en printes i A4-format.
Forslagsdato:
29-11-2021
Høringsperiode:
08-12-2021 - 12-01-2022
Vedtagelsesdato:
26-04-2022
Ikrafttrædelsesdato:
04-05-2022
Planens status:


Klik her for at se kortbilaget som pdf-fil: LINK
For at beholde kortbilaget i det rette målestok, skal pdf'en printes i A4-format.