

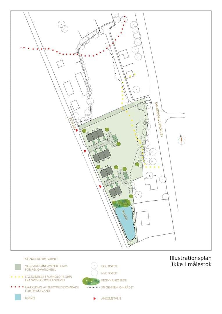
Klik her for at se kortbilaget som pdf-fil: LINK
For at beholde kortbilaget i den rette målestok, skal pdf'en printes i A4-format.
Forslagsdato:
09-01-2023
Høringsperiode:
18-01-2023 - 22-02-2023
Vedtagelsesdato:
20-06-2023
Ikrafttrædelsesdato:
28-06-2023
Planens status:


Klik her for at se kortbilaget som pdf-fil: LINK
For at beholde kortbilaget i den rette målestok, skal pdf'en printes i A4-format.